Basement Conversion

Project Overview

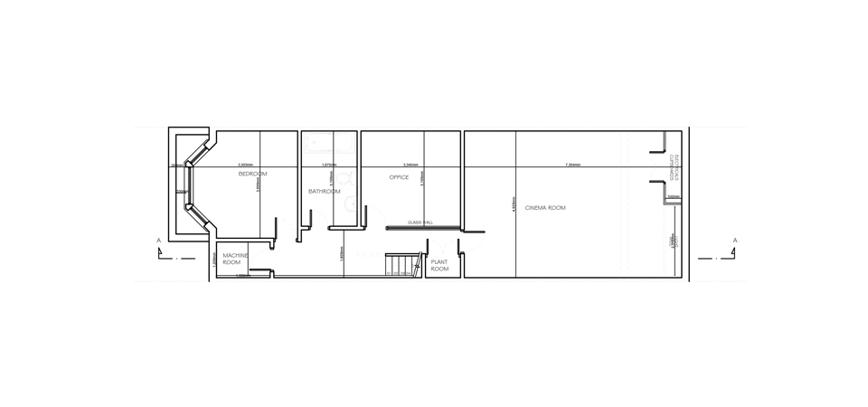
This development involved the further excavation and extension of current basement to create a space where the family could pursue their hobbies.

Projects Detail

Categories: Basement Conversion Client: London Date: 2016 Planning: Householder Planning
<< PREV PROJECT
NEXT PROJECT >>


Looking for the best partner for your next project?

PLEASE FILL YOUR EMAIL BELOW
Thank you for fill your email