





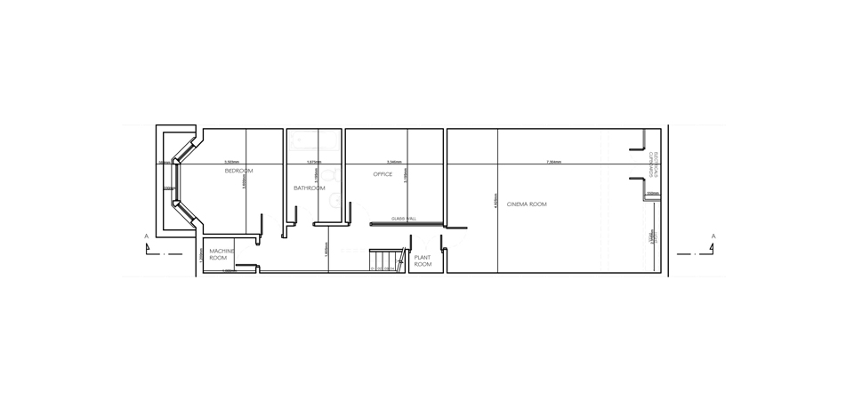
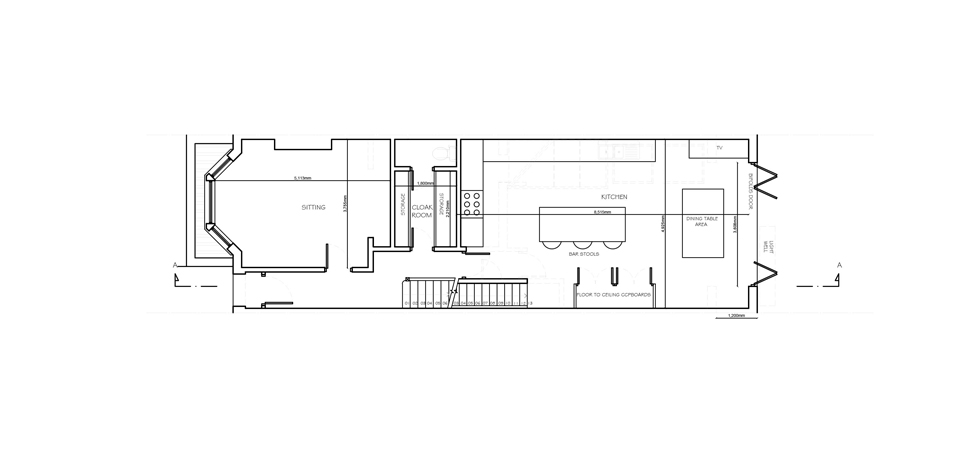
This development involved the further excavation and extension of current basement to create a space where the family could pursue their hobbies. As part of this development a ground floor extension was also created to facilitate an open kitchen/dining space, and lightwells placed on either end of the house to provide natural lighting to the basement.