





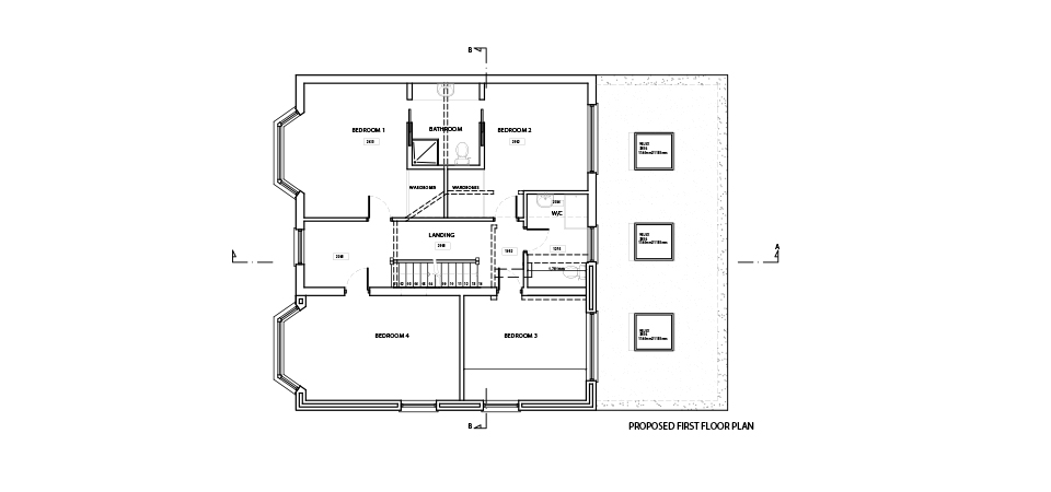
This development involved modifications to alter a moderate 2 bedroom property into a large family home. A side extension of 3 levels to provide additional bedrooms and bathrooms, and a ground floor rear extension to provide large open kitchen/dining area.