Loft Conversion

Project Overview

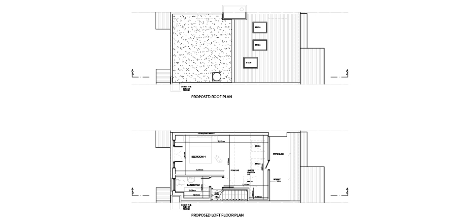
This development involved the creation of a full-size rear dormer to provide appropriate head space in the loft, to allow for an additional bedroom with ensuite to provide a guest room for this family.

Projects Detail

Categories: Loft Conversion Client: London Date: 2017 Planning:Lawful Development Certificate
NEXT PROJECT >>


Looking for the best partner for your next project?

PLEASE FILL YOUR EMAIL BELOW
Thank you for fill your email